Inmuebles en Venta, Obra Nueva en Castelldefels

Precio Venta
698.000 €
80m² | 8.725 €/m²
2
2
80m²
8.725 €/m²
Descripción
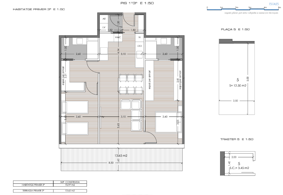
Obra nueva en Montemar, Castelldefels Viviendas exclusivas con terrazas, parking, trastero y zona comunitaria con piscina En el corazón de Montemar, una de las zonas más demandadas de Castelldefels, nace esta exclusiva promoción de 8 viviendas, diseñada para quienes buscan calidad, confort y eficiencia en un entorno tranquilo y bien comunicado. Un edificio contemporáneo, con acabados premium, gran aprovechamiento de la luz natural y un alto nivel de eficiencia energética gracias a su sistema de aerotermia. Además, la promoción cuenta con una zona comunitaria con piscina, ideal para disfrutar del buen clima y relajarse sin salir de casa. Actualmente, hay 4 viviendas disponibles, todas con plaza de parking y trastero incluidos en el precio. ? Planta baja: espectacular vivienda de 99,70m construidos más una terraza de 127,87m , perfecta para disfrutar del aire libre en la intimidad del hogar. Dispone de 3 habitaciones y 2 baños, con una distribución amplia, luminosa y funcional. ? Primeras plantas: ? Dos pisos de 76,31m con 10,14m de terraza cada uno, ambos con 3 habitaciones y 2 baños, ideales para familias que valoran el equilibrio entre confort interior y espacio exterior. ? Un piso de 72,97m con 13,65m de terraza, distribuido en 2 habitaciones y 2 baños, perfecto para parejas o quienes desean un espacio más recogido sin renunciar al diseño y la calidad. Cada vivienda ha sido pensada para ofrecer una experiencia de vida moderna y eficiente, con amplios ventanales que llenan los espacios de luz natural, conectando el interior con las terrazas y creando una sensación de amplitud y bienestar. Los acabados de categoría premium destacan por su elegancia y durabilidad: suelos de diseño, carpinterías de alta eficiencia térmica y acústica, cocinas equipadas con líneas contemporáneas y baños con un estilo cuidado y sofisticado. El edificio incorpora aerotermia como sistema central de climatización y agua caliente, garantizando eficiencia energética, bajo consumo y respeto por el medio ambiente. Vivir en Montemar significa disfrutar de la tranquilidad de un barrio residencial rodeado de naturaleza, con todos los servicios a tu alcance: colegios, supermercados, zonas verdes, transporte público y fácil acceso tanto al centro de Castelldefels como a la autopista. La playa se encuentra a pocos minutos, lo que convierte esta promoción en una opción única para quienes buscan combinar calidad de vida y ubicación privilegiada. Una promoción pensada para quienes valoran la exclusividad, la eficiencia y el confort en su nuevo hogar.Número API: 4070, número registro: 13172
Ficha inmueble
Referencia: MONTEMAR 1 3
Precio: 698.000 €
Tipo de operación: Venta
Tipo de inmueble: Piso
Ubicación:
Surperficie: 80m²
Nº de baños: 2
Nº de dormitorios: 2
Dormitorios dobles: 2
Ascensor
Calefacción
Cerca colegios
Parking
Certificación energética
Categoría de emisiones: En trámite
Categoría de consumo energético: En trámite
Galería de imágenes






